Sign in
EN
简体中文
ENGLISH
Home
/
Rent
/
Belvedere Row Apartments, Fountain Park Way, London W12
Belvedere Row Apartments, Fountain Park Way, London W12
Available date 29/09/2026

Let UK Home are excited to offer this spectacular two bedroom apartment in the heart of Belvedere Row Apartments part of the White City Living.
2
2
£ 808 pw
£ 3,500 pcm
Arranging a Viewing
Phone :01795358886
Letting Details
Let available date: 29/09/2026
Floor:5th Floor
Let type:Long Term
Furnish type:Furnished
PROPERTY TYPE
Flat
BEDROOMS
2
BATHROOMS
2
SIZE
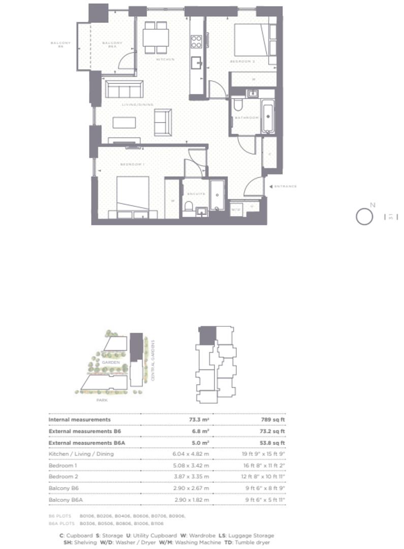
789 sqft
Description
Let UK Home are excited to offer this spectacular two bedroom apartment in the heart of Belvedere Row Apartments part of the White City Living.

The flat comprises a spacious open kitchen with a stylishly attached dining area, a magnificent living room leading to a large private balcony with great views, two bright bedrooms with built-in wardrobes(master ensuite), one modern family bathroom and ample storage.

Residents of this exceptional development will have exclusive use of indoor swimming pool, gymnasium, two 12-seater cinemas, private dining room, residents lounge and rooftop bar. Furthermore, residents of this exceptional development will benefit from a concierge and an unrivalled selection of shops, bars, restaurants, leisure facilities and beautiful courtyards.

White City Living is surrounded by world-class retail, entertainment, education, cultural and commercial venues, and is within walking distance of Europe's largest shopping mall, Westfield, with more than 500 shops, cinemas, restaurants and supermarkets, providing a wealth of shopping, dining and entertainment options to meet residents daily shopping and leisure needs. Not only that, there are many theatres, concert halls, art galleries and museums nearby such as the Design Museum, Leighton House Museum, Shepherd's Bush Empire, Bush Hall and The Bush Theatre, providing residents with a wealth of cultural and entertainment options. In addition, there are a lot of green spaces in the development, and there are Ravenscourt Park and Holand Park nearby, providing residents with great places for leisure and entertainment.
Map
Tube
University
Shopping
Food
Underground-West Brompton
Underground West Brompton
Underground Earls Court
Underground West Kensington
Underground Barons Court
Underground High Street Kensington
Underground Kensington Olympia
Underground Hammersmith
Underground Hammersmith
Underground Hammersmith
Underground Hammersmith
Underground Stamford Brook
Underground East Acton
Underground Kensal Green
Underground Wood Lane
Underground White City
Underground Shepherd's Bush Market
Underground Latimer Road
Underground Shepherd's Bush
Underground Goldhawk Road
Underground Goldhawk Road
Underground Ladbroke Grove
Underground Holland Park
Underground Notting Hill Gate
Underground Ravenscourt Park
Underground Westbourne Park
Underground Kilburn Park
Underground Queens Park
London Film Academy
Holborn College
Montessori Collage Chiswick
Grafton College
Ealing Hammersmith & West London
Imperial College Hammersmith Campus
MRC Clinical Sciences Centre
Northern Area Community Learning & Leisure
Business Associated College
Hamilton College
St Charles Catholic Sixth Form College
Masbro Centre
The London College
Burleigh College
Holland Park Centre
Pitman Training Centre
Royal Wells College
Miller's Academy of Arts & Science
Charing X & Westminster Medical School
Auracle Sound
Longchamp
Hawes & Curtis Westfield Shepherds Bush
365 Fashions
Atelier de Courcelles
Finiks
Flying Tiger Copenhagen
Super Choice
Crisis
next
Moss Bros
Pauline Books & Media
Kathmandu
Seraphine
DECATHLON
Digit Home Contact
Sid's
Foodstop London
Sri Sai Convenience
Christmas Company
C-Ize
Bury Food And Wine
Minkia
John Lewis
Reserved
GUESS
Georgia Roberto
Primark
TED BAKER
Mossential
Hugo
CALZEDONIA
Dune Group
Lerins
Samantha Cameron Studio
Westside Brixton
Non Stop Working
Brick Print Fashion
Skopes
Upwrap
Talk Nice
Emmanuel Saint
Cheeki Monkeys
Thresh Wines
Hyphen By Lobo
Honeybunch
Helal Trading
Jlr Consuiil
Andanni
Temperance Lavolta
City Cashmere
Brook Green Market
Montreux London
Grogart
Pruna Traders
Bridel Scott
Abtin
Eponine
COS
Russell & Bromley
Gps Great Britain
CALZEDONIA
Hawes & Curtis
Trotters
Kurt Keiger
OLIVER BONAS
Waterstones
Boots
Argos
De'Luxe Lace
The Tabot Centre
Jameel Islamic
Caprice Studio
Best Price News
Amor Rae
Kambia Limited
Evelie
Jamieson Kemp
Baycastle Vintage
Lebanon Star
Supersave Food And Wine
Wahab Store
Milk & Flour
Munib's Enterprises
Magic Internet Money Gifts
Linton Imports & Exports
Zaira Christa
Miss Sixty
Aquascutum
White Stuff
O2 Shop
WHISTLES
VICTORIA'S SECRET PINK
LK Bennett
Sports Direct White City
White City Warehouse
White Stuff
Eats and Bits
Intellicasa
Ferragamo
Olympia Foods
Sheindress
Richmond Way General Services
Expert Tuition
Byaleixlopez
Imperial College Healthcare NHS Trust@Charing Cross Hospital
Gaga2
Bikesoup
Pvm Studios
TK Maxx
Soltys Sea Salt
NYC Collections
Trinity Hospice Shops
Kings Mall Shopping Centre
Theazer
Cys Fashion
Mafalda Handmade
Janeen London
Primark
Sook
Vin A Go Wines
7seas Store
Peaceful Solutions
Merchant Archive
Boden
Khaadi
Just Drinks'
Universal Liquor Mart
Candau Antiques
Argos
Sogans School & College Outfitters
Ranjita
Tasty Hub
Hl Deposits Invest
Raynes Park Sushi
Pasta Gourmet
Hope Group of Companies
Clarks
The Popup Club
LIDL
Livat Hammersmith
Evolution
Amk Sales
Hanzala
CALZEDONIA
GUESS
Westfield Shepherds Bush
Six Three One Management
Of Foods
Robinson Webster Holdings
Amazon Fresh
Damascene Rose Deli
Emin Wines
Vinny Food & Wine
Plan My Vision
Hobbs
CSM Food & Wine Shop
Agapeclo
Jones & Foods
Arwas Supermarket
Innate Essence
Wierzejki Polish Food In East Acton
Iceland
Goodies
Aston Chef
Zehra Supermarket
Yummy Biryani Takeaway
Advanced Statistics Solutions
Offgrid Ldn Retail
Big Globallimited London
Charles Tyrwhitt
Boots Hearingcare Westfield
Woodnutt Antiq
Amazon Fresh
Tesco Express
Fulham Palace Wine
Hammersmith Natural
Sainsbury's Local
Acipenser Caviar
Milifortune
City Supermarket
Besugo
Free From Italy
Cured
Caviar Society
Triptikhettry
Shawa Lebanese Grill
Lancaster Ventures
West Kitchen
Ole & Steen
Five Guys
Chik'n
Indi Go
Grounds Of Arabica
Bergamot
Prairie Fire Bbq
Bubbleology Westfield London
Mini Cafe
Barino
Accelerate Places
Garden Bar
Bella Padel
Quick Local Store
Ahm Heathy Fast Food
Masbro Food And Wine
The Crown &Sceptre
Cooking 4 U
Cold Stone Creamery
Fair Price
Shandeez
Seasons Kensington Bistrot
Taste Of Joy By Jonathan Georgery
The Bird In Hand
Ciborestaurant
Kensington Food & Wine
Alounak Kensington
Alo London
Oriental Kitchen Express
MR India
Nisa
Karma Br
Muji
Green Illness
Kensington Thai Terrace
Muffin Man
Caffe Musetti
Maggie J's
La Poule
The Britannia
Gail's Bakery Kensington Arcade
Oree
Five Guys
Balans
Paris Baguette Kensington High Street
Kensington Quarter
Tropical Trappin
Flaver'z On The Road
Kareem Adam
M&S Simply Food
Mesquared
Dindin World
Hampsteads Premier Dairies
Mama Mia Pizza
Empires Kitchen Caribbean Take-Away
Swissybuns
Khongmanee
Pazzo
Hamish Newsagent
Pop Bakery
Giorgio
Queen's
Sams Chicken
Acai Berry Hub
Mr Fish
Divine Food Delights
Selasi Gbormittah
Esteve Hot Dog
Fullerton's Crisps
Boss Daddy
Kappo
Bread Lab
Brasserie Blanc Fulham Reach
Reun Thai Restaurant
Saipratum
Kenta Ob
Fulham Palace Confectioners
Randalls Group
Biryanipot
Pad Thai Story
Cafe Barca
Dwine
Half Moon Cafe
Fulham Caffe
Kitchen Ventures
Bluebird Café White City
The Allis
Kricket
Vacherin by CH&Co Catering
Kv Pop-Ups
Curry Express
The Broadcaster
Urban Baristas
The Black Farmer
Westwood
Temper
Patty & Bun
Wraps & Wings Kensington
Green Focus Catering
The Blue Boat, Fulham Reach
Charlotte's Cloud
Sam's Riverside
Sam's Kitchen
Buas Thai Cuisine
Crisp Pizza
Tops Pizza
Falafel Zaki
White City Studio
Gail Stores
Kin Pizza
Ladurée
Sainsbury's
Save 4 You
King Street Supermarket
Iceland
Matamunchies
Velucci
Thegreenspoon
Tnt Mexican
Galo Samba
Sodo Pizza Hammersmith
The Stonemasons Arms
TACO BELL
Dartmouth Castle
Gulab
German Doner Kebab
IKEA
Hey Tea
McDonald's
Poppys Thai Eatery
Brown Rice
American Burger
Tree Artisan Cafe
Gio Crystals
Kidramas
Bossmans Food and Wine
The London Cake Academy
Burnt
Royal Mail Sorting Office Compass Group
Waitrose
Asian Grocery Supplies
Cups and Bowl
The Crabtree
The River Cafe
St Commercial
Shell SELECT
Londis
deli by Shell
Cofx
Cafe & Crepe
7 Skies Coffee
Tsukiji Sushi Fusion Fulham
Ksara Restaurant
Hoja Restaurants
Santinho
Ottoman
Pret a Manger
Expressions Coffee
Fulai Supermarket
Borough Barista Hospitality
Ecp Belsize
Boi Gordo Butchers & Grocery
Viz Diz
Acm Elephant
Onriver Uk
Bps Catering Services
Doorsteps
Blanche Eatery
Arc West London
Imperial Rp Dragon
Magnolia Tree Cafe
Alayali Group
Med Two Olive Trees
Shanzelize Restaurant & Lounge
Bens of Kensington High Street
Co-operative food
Ricco
Yumidon
Crepeaffaire Westfield
Riverside Palace
Freddie's Cake Shop
Frestons
Cream
Caddi Club Fulham
Jollof Mama
LIDL
Pines and Needles
London Tailors Limited
My Mini Mix
Servo Group
Ginger Tiger
Sense 10
Pavilion Cafe
Yasmina
Raras Kitchen Mediterranean Take Away
Spiceroot
Kish Express
Shawarma Express
Pizza GOGO
No Drama
Hikaru
Al Manara Butchery
London Snooker Acton
The Hub
Kings Kebab
Mes Amis
Mimino
Bartlett Mitchell C O PVH
Sarnie Station
Elior @ Queens Park Rangers Football Club
The Hive
The Old City Arms
Mezza & Grill
Tesco Express
Floorplan
2 B 2 B
Price From £ 808 pw
Area About 789 sqft
Arranging a Viewing
Key features
Concierge Service
24h Security
Swimming Pool
The Spa
The Gym
Cinema & Game Room
Residents Lounge
Benefits of Let UK Home Lettings
Real Photos, Real Listings
100% authentic property images and videos for virtual or in-person viewings.
Clear, Upfront Pricing
No hidden fees—transparent rental terms from the start.
Complete Aftercare
We provide ongoing support for maintenance and repairs, ensuring a worry-free rental experience.
Hassle-Free Online Process
Convenient online booking and contract signing to save you time.
Secure Rent Payments
Pay rent online with confidence, using our secure payment system.
You Might Also Like
More
Dispatch House, 4 Paragon Square, London WC1X
Let UK Home are excited to offer this beautiful three bedroom apartment in the heart of Central London.
£ 1,154 pw
24 Albert Embankment, London, SE1
Let UK Home are excited to offer this stunning 3-bedroom apartment in the highly sought after The Corniche development.
£ 2,146 pw
Fermont House, 15 Beaufort Square, London NW9
Let UK Home are excited to offer this spectacular one bedroom in the heart of Fermont House part of the Beaufort Park.
£ 400 pw
Aspen, 50 Marsh Wall, London E22
Let UK Home are excited to offer this spectacular 2 bedroom apartment in the heart of Aspen part of the Canary Wharf.
£ 854 pw
Related Reading
UK Landlord Guide for Beginners! What Documents to Prepare for Renting Out Your Property for the First Time?
Let Uk Home
2024 UK Student Accommodation Move-in Guide!
Let Uk Home
WhatsApp