Sign in
EN
简体中文
ENGLISH
Home
/
Rent
/
Gibbins Road, Birmingham, B29
Gibbins Road, Birmingham, B29
Available date 30/06/2026

Let UK Home are excited to offer this spacious five-bedroom apartment which can walk to the University of Birmingham.
5
2
£ 480 pw
£ 2,080 pcm
Arranging a Viewing
Phone :01795358886
Letting Details
Let available date: 30/06/2026
Floor:House
Let type:Long Term
Furnish type:Furnished
PROPERTY TYPE
House
BEDROOMS
5
BATHROOMS
2
SIZE
1259 sqft
Description
Let UK Home are excited to offer this spacious five-bedroom apartment which can walk to the University of Birmingham.

Property Features
minutes' walk to the University of Birmingham/local shops and parks
Short walk to Selly Oak Train Station
5 double bedroom house
Economic gas central heating
Smoke alarm system
Burglar alarm for security
Off-road Parking

Property Summary
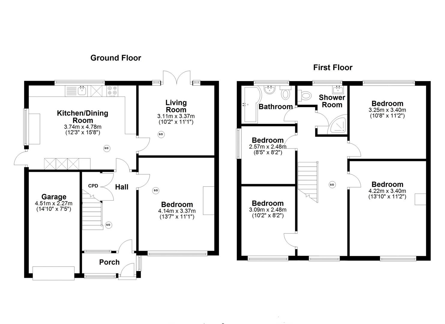
This spacious 5-bedroom student house on Gibbins Road, Selly Oak, offers comfortable and well-appointed living. The property has been recently redecorated and refurbished, ensuring a fresh and modern feel throughout. The open-plan kitchen-diner, equipped with appliances including an American fridge-freezer, offers ample space for dining and opens to the garden via patio doors. The lounge is perfect for relaxation with its leather sofas. Situated in a convenient location near Selly Oak train station, Bristol Road, and local shops, this property provides students or working professionals with a practical and comfortable home.
Map
University
Shopping
Food
Birmingham City University
Queen's Foundation
University of Birmingham
University of Birmingham
Birmingham Adult Education Service
School of Education
Birmingham Business School
Open University
University of Birmingham
Birmingham Adult Education Service
Birmingham Adult Education Service
Birmingham Adult Education Service
Birmingham Adult Education Service
Queen Alexandra College
Birmingham Adult Education Service
Birmingham Adult Education Service
Sainsbury's
Selly Oak Argos
The Food Warehouse by Iceland
InPost Locker
Shoezone
TK Maxx
Sports Direct
Battery Retail Park
Selly Oak Shopping Park
M&S Foodhall
T. K. News & Convenience
Contours
Sense Charity Shop
Dave Wines
Tk News Booze
Hallmark
Battery Retail Park
Arohana Foods
Shoe Zone
Iceland
Sportsdirect.Com
Timpson
Card Factory
Rahm Exports
The Works
Argos
Drinks2go
Selly Joke
Smoothie Bar
Shanies
Fresh Oriental
Buzz Shop
Overload
University Superstore
M A Sepahan
Top Express Oriental Supermarket
Little Ivy
Zsi Bhm
New Jaan
Ali Supermarkets
Edgbaston Antiques
Levantine Food
Grace Hand Super Store
The Perryman Enterprise
Winestop
Wine Shop
Quality Pro
Veg Mart
The Restaurant Hub, Selly Oak
Harry Ramsden's Selly Oak
Gourmet Burger Kitchen
Ed's Easy diner
Costa Coffee
McDonald's
Starbucks
Greggs
Nando's Selly Oak
Hyderabad Wala Birmingham
Papa Johns Pizza
JASHARI GYROS
Sangaw Supermarket
Ak22
Sam Mart Bristol Road
Krack Foods
Ace Superstore
Dessert Parlour
Bubble Waffles
Shake House Selly Oak
Burger & Sauce Selly Oak
Bohemia
Food Max
Alis Kebab And Grill
The Pop Shop 24 7
White Ship
Pino Pizza & Pasta
Madras Curries
Grill N Shake Halal
All Homemade Cakes
Jashari Gyros
Cafe Zante
Shunfa Food Direct
Hang Sing Hong Birmingham
Seoul Plaza
The Rookery
Parks for Play
Kimchi
Evolve Grounded
Kimchi Korean Restaurant
Kebab Land
Mitchells Butlers Retail
Uk Four Sea
Divine Desserts
Liangji Wraps
Rooster House
Shui Ge Classic Hk Kitchen
Rooster Hut
Beefys
Yakinori Selly Oak
Tesco Express
Piri Fino Selly Oak
Floorplan
5 B 2 B
Price From £ 480 pw
Area About 1259 sqft
Arranging a Viewing
Key features
Benefits of Let UK Home Lettings
Real Photos, Real Listings
100% authentic property images and videos for virtual or in-person viewings.
Clear, Upfront Pricing
No hidden fees—transparent rental terms from the start.
Complete Aftercare
We provide ongoing support for maintenance and repairs, ensuring a worry-free rental experience.
Hassle-Free Online Process
Convenient online booking and contract signing to save you time.
Secure Rent Payments
Pay rent online with confidence, using our secure payment system.
You Might Also Like
More
Dispatch House, 4 Paragon Square, London WC1X
Let UK Home are excited to offer this beautiful three bedroom apartment in the heart of Central London.
£ 1,154 pw
24 Albert Embankment, London, SE1
Let UK Home are excited to offer this stunning 3-bedroom apartment in the highly sought after The Corniche development.
£ 2,146 pw
Fermont House, 15 Beaufort Square, London NW9
Let UK Home are excited to offer this spectacular one bedroom in the heart of Fermont House part of the Beaufort Park.
£ 400 pw
Aspen, 50 Marsh Wall, London E22
Let UK Home are excited to offer this spectacular 2 bedroom apartment in the heart of Aspen part of the Canary Wharf.
£ 854 pw
Related Reading
UK Landlord Guide for Beginners! What Documents to Prepare for Renting Out Your Property for the First Time?
Let Uk Home
2024 UK Student Accommodation Move-in Guide!
Let Uk Home
WhatsApp