Sign in
EN
简体中文
ENGLISH
Home
/
Rent
/
Bird Close, Birmingham, B12
Bird Close, Birmingham, B12
Available date 23/05/2026

Let UK Home are excited to offer this stunning three-bedroom, two storey property situated at Belgrave Middleway, Birmingham.
3
2
From £ 450 pw
From £ 1,950 pcm
Arranging a Viewing
Phone :01795358886
Letting Details
Let available date: 23/05/2026
Floor:Ground Floor & 1st Floor
Let type:Long Term
Furnish type:Furnished
PROPERTY TYPE
Flat
BEDROOMS
3
BATHROOMS
2
SIZE
1023 sqft
Description
Let UK Home are excited to offer this stunning three-bedroom, two storey property situated at Belgrave Middleway, Birmingham.

Property Features
• Open-plan dining and family area
• Ground floor W/C
• Ground floor storage
• Patio doors
• Three bedrooms
• Family bathroom
• Single Garage

Property Summary
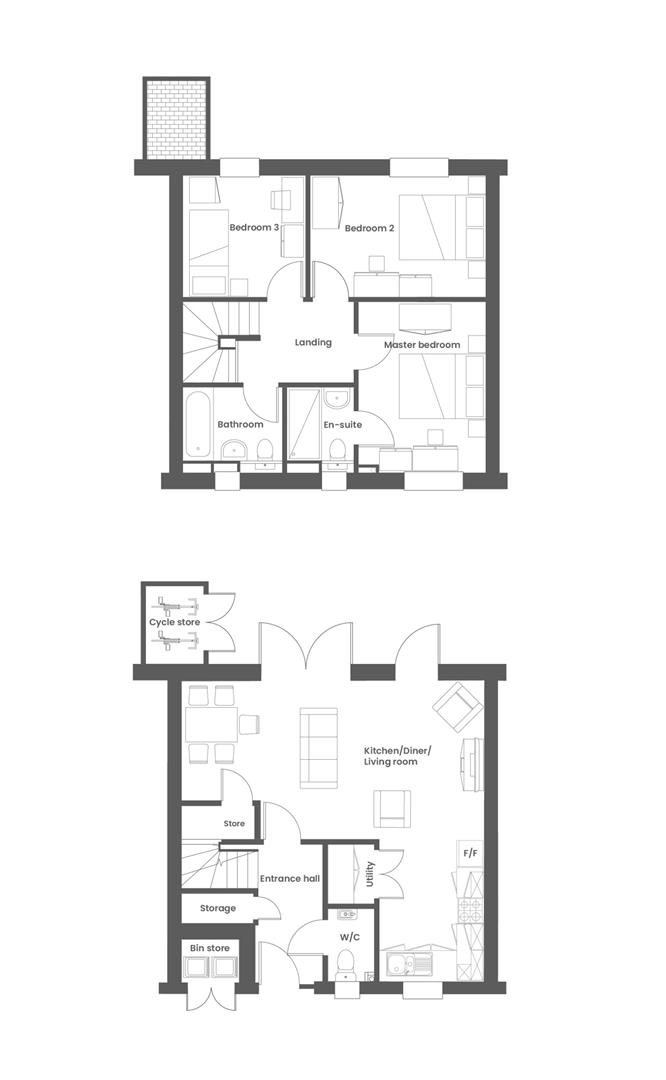
As you enter the hall, relax or entertain in the fantastically designed spacious open-plan dining and living area. An L shaped kitchen is located adjacent to the living area that features a convenient separate utility room.

A W/C, storage room and central French doors to the garden perfectly finish the ground floor.

Upstairs, a family bathroom is shared by a well-proportioned single and double bedroom to the rear of the home overlooking the garden. The master bedroom, located to the front, offers an en-suite bathroom and wardrobe space.
Map
University
Shopping
Food
Conference Aston
Aston University
College of Law
University College Birmingham
Birmingham Adult Education Service
University College Birmingham
School of Jewellery
Central Birmingham College
Empire College London Campus
Thames College of Professional Studies
Hartlands
Joseph Chamberlain Sixth Form College
Birmingham Professional College
Midlands Education Training Services
Birmingham Adult Education Service
Birmingham Adult Education Service
Fat Giraffe
Ashwood Leather
Acess
Socks Direct
Gillicci Clothing
St Paul's Bookshop
U Go Sports
Sharp Foods
Electrical Installations
Golden Oldies
Dancique
The Diskery
Andaaz Online
Aston Books
VAUXHALL Wines and Spirits
Bodyguard Workwear
Peters Books
Nightrips
Portrait
Cruise Gang
Oriental Supermarket
Fat Face
Miss Diva
Kids Korner
Red Jeans
Mailbox
Harvey Nichols
Pinko
Paul Smith
English Brands
Amana Amore
Yongqiwang
Aifa8
Lafillenoirehome
Clothing Island
Imaginationfaithfulness
Couragestrength
Achievements
Oldbury Maple
Heting
Delinc
Gulili
Knitlab
Sps Commodities
Wliuq
Barlytec
Visauqboulakten
Atlas Mini Market
S And K Halal Meat
Cafe 290
Ks 38
Corporate Wear
Delivered Fast
Tarek General Trading
Wild N Winning
Custom Snack
House Of Inaayat
Sailen
Luxury Modesty
Your Mini Market
Noor Zara
Highgate Market
Charles Keith Uk
Darlington's
Club Monaco Europe
Innovation Court
Clements & Church
Shaw Trust Enterprises
Finnerbury Uk
Urban Coffee Company 4
Alkalign
Entrivity International
Loake SHOEMAKERS
Slimfast Stars
Martin Pleasance Uk
Louis Vuitton Uk
Liquor Store
Hydra Incorporated
Booze Delivery
Cdo Sales
Colmore Tailors
New Golden City Takeaway
Edit Suits Tailor In Birmingham
Mailbox Birmingham
Hong Kong One
Warwick Koi
Wv12
Phoenix Rubery
Cambridge Cherry
Prawn Blaydon
Express Nelson
Roberts Hk
Tetraelc Uk
Kp Chips
Neay 611
Super Bubble Station
World Greetings
The Cube
Pyramid Fashion Accessories International
Sgn Enterprise
John Feeney Arcade
Kentex Fashions
Covenant Enterprises
Adaams Bham
Weizhongzhang
Bukkaway
Zeqiangtian
Bangla Resources
Easygo Appliances
Jf Luxury Fashion
Fdc Commerce
Oriental Products
Lzh Interiors
Louisville Sublimity
Rh Online Retails
Onestop Platform
Fengweiwei
Lets Go Supermarket
Clone Zone
Arcadian Centre
Vape Point
Theflower
Up & Running
The Frankfurt Christmas Market
Smithsonia
Piccadilly Opticians
Union Pay
Sherwani Studi
Coco House Hq
Stock Monster Properties
Safeguard Quality Assurance
Blue Monday
Bead Loft
Kk Chef Services
Clark Timms
Foysol Spice
Qkiyo Fashionlondon
Five Ways Shopping Centre
Zxuyii
Syan
Reza Bs
Raymond Harrison
Dhalings
Parul Collections
Divinedine
Yijuan
Tesco Stores Limited
Qf French Tacos
New Look
Dorothy Drummond
Mahfil Takeaway
Tanushree Collections
Captains Catch
Georges Fish Chips
Djingj
Gjun
Hqing
Captains Off Licence
Islandjerk
Jamrock
Made In The Middle
Lubabah
Buzz B
Evergreen Convenience Store
Dream Moments
Salooni Supermarket Limited
Horsefair Trade
Pan Express
Houghton Spring
The Square Birmingham
Grand Technix
HUGO BOSS
J & F Food Stores
SMS Supermarket
Dilly's Kitchen Birmingham
Eatclucker
Edward Express
Luton Chicken
Thebxdy
The Selly Park Tavern
Phillip Collier
Aziz Supermarket
Barn Wines & Spirits
Neptuno
Amaan Halal Me
Jericho Print & Promotion Balsall Heath
Bond Wolfe
Birmingham Wine School
Kw Newent
Chang Fa
I Springfield
Pure Pearl
Zaland Clothing Fashion
Darussalam Publishers
Hosiery Style
Tip Harden
Mazza Of Asia
M M Caterers
Flourishwise
Thrive Line 2023
Sumin
Happy2024
Sequin Showstoppers
Bubble 6lt
Seahorse Sk5
Aw Devon
Saintfield Bt8
Tian Import Export
Yoshiis
Meta Best
Moroccan Herbs & Mini Market
Masquerading Monkey
Xft Birmingham
June Peony Bridal Couture
Measham Wood
Swastik Sarees
Strong Anchor
Valley Spennymoor
The Paparata Company
Dundas Curry
Wsqy
Long Pong
The Cymbal Centre
John Smiths Bookshop
E Plus Supermarket
Super Shaheen Traders
Lbrwl
Yujiao
Mliaan
Weishao
Beautylady
Yoyar
Zhenp
Pink Tangerine
Liquor Store (
French Connection
Laima Bridal
Back Street Fashion
A K2
Abids Limits
Kglobalenterprises
Cobwebs Antiques
Rich Wines
Gillianflowers
The Mushrooms Birmingham
Saint World
Mickute Foods
Subi Supermarket
Nasar Mini Market
REISS
Dixy Halal Chicken
Zamm Zamm Foods
C.Go Asian Mart
Gan Fan Ren
The Cheeseboard
Maktaba Tul Madina Uk
Papa Asian Mart
Latifs
Sun Yip
Yolk Breakfast And Lunch
Costcutter
Costcutter
Samis Wholesale Cash & Carry Stores Birmingham
The Vegan Dessert
Second City Liqour
Costcutter
Viet-Town Supermarket
Hangchao
Shaorma Romaneasca Birmingham
Brgr Box
Transylvania Land
Ro Restaurant
Padthai86
Haihuangge86
Pad Thai Restaurant And Karaoke Bar
Nmpdni
B1 Padthai
Shanghaiye
Best One
Plum Bob House
So Mezze Lounge
Two Towers Brewery
Adnan Market
My Papa Joe's
Jannat Food Services
My Mak Halal
Twin Dragons
Al-Habib Convenience Store
Bite Central
Uk Fried Chicken
Syrian House Restaurant
Central Market
Highgate News
GREGGS
Big Johns
Tru Spice Caribbean Kitchen
Stanhope Wellbeing Hub
Jamaican
Deep Caribbean Experience
Vagabond Birmingham
The Co-Operative Food
Purnell's Bistro
Bagel Factory
Gaucho
Pint Shop
Bundobust Birmingham
The Old Joint Stock Pub & Theatre, Birmingham
Bushwackers
Orelle
Bureau
Damascena Birmingham City Centre
Projkt Social
Asha's
Baguette du Monde
Cluck Chicken
Plates By Purnell's
Colmore Bar & Grill
Edmunds Lounge Bar & Eatery
Plan B Food
Al Bayt Foods
Noels Bar And Restaurant
Dil Se
Chaiway
Ask Restaurants
Indico Mailbox
Chai & Crumbs
Best Meal Deal
Shogun Teppanyaki
Shogun Sushi & Noodle Bar
Mid Point Uk
Medicine Bakery
Perios
At The Woods
Lucarelli Restaurant Mailbox
Malmaison Bar & Grill
Ac Hotel-Birmingham
Sixes Social Cricket
For Zuria
Mehrifood
Fest 1
Two Towers Brewery
Nisa
Nisa
Ronald McDonald House Birmingham
Forged Burgers
Snowhill Convenience Store and Off Licence
The Bull
Alba
Big Max Grill
Old Snow Hill
Atlantis Gyros
Lifestyle Express
Pizza Paradise
Burger Hut
Texan Trio
Bucks
Syriana Restaurant
Yummy Fc
Jz Stockroom
Harbinger
Tan Noodles
The Loft
Wafu Japanese Food
Hot 7
Jv Menai Bridge
Ty Hurst Street
Xiongqi
Chengdu Hot Pot
Big Foodie Manchester
Formosa Izakaya
Kyoto
Pinchuan
Taste Of Sichuan
Pc888
Topokki
Pepper Chef
Six By Nico
The Colmore Club
Reginas
ISS Food and Hospitality
Brandasia
The Wellington
Mt Management
Maxi Delight
Spring Wok
The Angry Donut's
Garcha Brothers
G Gk
Kokobells
Community Labour
Langurra Trading
Hayashi
Beau Eateries
The Pig & Tail
Prestige Bar Restaurant
Hono Restaurant and Bar
Lekker Cafe
The Jungle Cafe
Moka
Beast Pizza
Aishwarya Bhagwat
Juiceinit
Ameziane Distribution Food Adf
Del Villaggio
1565 Restaurant, Bar & Terrace
Sandwich Club
Lavatte
Nando's
Dessert Boxx
Angela's Trattoria
The Buffet
Buddha Blue
La Pop Edgbaston Village
Lazy Lunch
Best One
Varanasi
Baskin-Robbins
T Hay
Slr Ali Investments
Red Saffron
The Brew Bar Lounge
Delta Hotels-Birmingham
Costcutter
Ics Chinese Quarter
Bull Burgers
Ci 775
Cm Nottingham
Holy Angel Church 2019
Pizza Perfect
Skippers Fish Bar
Aadams Foods
Caspian Pizza
Dragon Rabbit Express
Mellows Bar And Restaurant
Jjspice Kitchen
Costcutter
Lovemilanocoffee
Al Dowsary Mini Market
Smoking Qs Snooker Club
Luxor Burgers And Pizza
Teamadamscafe
Top Uk Fried Chicken
Babylon Cafe
The Prince Coffee Lounge
Yasha Kitchen
Sugar Blush Desserts
Abshir Fars
Coffee House
Le Codfather
Family Butcher And Market
Caribana
Moonbay Helston
Premier
Scrandads
Black Bean
Bardolino Birmingham
Medicine Mailbox
Malmaison Bar & Grill Birmingham
ALDI
Biryani Cottage
Ish Trading
Tally Ho Conference Centre Sports an
Midlands Arts Centre Trading
Kiln By Mac
Cannon Hill Park Tearooms
Ess Catering Service
Belly's Caribbean Grill
Morrisons Daily
The Edgbaston Tap
Morrisons Daily
Mings Chinese Takeaway
The Island House
Sirharryschippy
The Bournbrook Inn
Asda Edgbaston Express
Happy Lemon Franchise Uk
Home Appetit
Sz Parties
Sizzle N Drizzle
Bubble CiTea
Ama Restaurant
Imperial Tongseoi Limited
Arcadian
Wfc Whole Fried Chicken
Xi An
Helmestad Restaurant
James Dahl Indian
Dragon Gate
Poppy Red
The Malaya Classic
Sobar
Qilu Restaurant
Marco's Kitchen
Pan Haus Leisure
New Sum Ye
Blazing Bird
The Convenience Store
Gunmakers Arms
Nisa
Monty's Brasserie
BT Three Snowhill
Colombia Picada Mix
MR Tasty 1
Storeaid
Grange Live Gaming
Medicine Bakery at the Mailbox
Belle Vue Enterprises
Londis
Premier
Select Xpress
Sue's Cafe
Modern Restaurant And Cafee
Bella Roma
Bravo Takeaway Restaurant- African Delicacies
Merrymaid Bar And Grill
Leading Seafood Hotpot
Jackys Kitchen
Harbin Barbeque
MRS.Q
Kei Hing Restaurant
Lucky Claw
好食
Hui Tong
Great Food Everyday
Song Tuoi
Miss Vietnam
The Thai Classic
80's Canteen
Akari Cafe
Dadongbei
Miss Korea
Dumpling House
Ruga Bistro
Uncle Leos Beef Noodle
Sidewalk Birmingham
8 Bowls
Indi Bar
Ls Berkshire
Sunbo 0at
Fvk Sk8
Asian 2ab
Sipp Nottingham
Morrisons Daily
Cloud 9
Wing Box Birmingham City Centre
The Eat Spot
Beluga
Gaijin Sushi
Ltdgroup
Mitsuru 1dd
Rp 60
Indian Cafe Racer
Ramen 1hw
Umi Shokudou
Duck Ox26
The Piano Works Cardiff
Kurdish Kebab And Grill
Keyih Bahri
Taikula
Dhaba
Deep Experience
佳能山公園
Westgate Paper
Sister Gao Casserole
Harringtons Gourmet S
Tesco Express
Kung Fu Noodle
Ming Rui
DMLC Entertainment
Rofuto
Papillon Cafe & Restaurant
BBQ Atmosphere
Peg & Grill
Grill House
Caesars Modern Indian Cuisine
197 Broad St
Fats Fish and
Dil Se
The Mayan
Aluna
Jaqks
En Steak And Cocktail Bar
Zizzi Italian
Asda
Top Cakes
Tesco Express
Empress Bar And Grill
Esso
The PIZZA Company
Made With Lov-Nigerian Restaurant Birmingham
Marston's
Beefys
Best Foods
Selly Acre News
Co-Op
Alana Nurah Cakes
Al Buraq Store
Bes Street Food
Lesley's Corner Cafe
Paprika Grill Cafe And Restaurant
Halal Bros International
Rody Aury
Shahi Nan Kabab Birmingham
Dads Lane Fish Bar And Restaurant
Rajpoot
Flame Pizza
Dena Pizza
Diva
Hnn Foods
Aime Desserts
Highbury Inn
Simply Fresh
Bcu Steamhouse
Eagle & Ball
Co-Op
Unite the Union
Aloft-Birmingham Eastside
Birmingham Conservatoire
Classic Cuisine
Mulino Birmingham
Coffee Break
MRS B's Catering Services
The London and Northwestern
Sabi's Kitchen
No 393
Harvester Boldmere Rd Sutton Coldfield
The Lounge
My Lahore
Chaiiwala
Cafe Evoke
Chapter Edgbaston
Kim's Kitchen
Kohinoor Restaurant
Lilys Szechuan Restaurant
J 8708
Lg Tipton
Valley 5dy
Birdie Tree
Oriental Torquay
The English Breakfast Club
Ge 6nn
Century 119
Orkney 51
Lee 1jq
Floorplan
3 B 2 B
Price From £ 450 pw
Area About 1023 sqft
Arranging a Viewing
Key features
Ground Floor & 1st Floor
The Gym
Parking
Concierge Service
EPC Rating: B
Benefits of Let UK Home Lettings
Real Photos, Real Listings
100% authentic property images and videos for virtual or in-person viewings.
Clear, Upfront Pricing
No hidden fees—transparent rental terms from the start.
Complete Aftercare
We provide ongoing support for maintenance and repairs, ensuring a worry-free rental experience.
Hassle-Free Online Process
Convenient online booking and contract signing to save you time.
Secure Rent Payments
Pay rent online with confidence, using our secure payment system.
Tenant Fees Schedule
You Might Also Like
More
5 Pomona Strand Old Trafford, Old Trafford, Manchester M16 - 1
Let UK Home are excited to offer this stunning two bedroom apartment in X1 Manchester Waters, perfectly located in Manchester.
From £ 300 pw
Trafford Road, Salford, M5
Let UK Home are excited to offer this stunning two bedroom apartment in Trafford Road, perfectly located in Manchester.
From £ 288 pw
5 Pomona Strand Old Trafford, Old Trafford, Manchester M16 - 2
Let UK Home are excited to offer this stunning one-bedroom apartment in X1 Manchester Waters, perfectly located in Manchester.
From £ 231 pw
Furness Quay, Salford, M50
Let UK Home are proudly present this modern and elegant one-bedroom apartment, located in the prime area of Salford Quays in Manchester, within the sought-after Furness Quay residential district. Nestled right next to MediaCityUK, it boasts unobstructed waterside views, perfectly blending urban vibrancy with the tranquility of waterfront living, creating a comfortable and relaxing environment.
From £ 208 pw
Related Reading
UK Landlord Guide for Beginners! What Documents to Prepare for Renting Out Your Property for the First Time?
Let Uk Home
2024 UK Student Accommodation Move-in Guide!
Let Uk Home
WhatsApp