Sign in
EN
简体中文
ENGLISH
Home
/
Rent
/
Longwater Avenue, Green Park, Reading, RG2
Longwater Avenue, Green Park, Reading, RG2
Available date 20/04/2026

Let UK Home are excited to offer this stunning 4-bedroom townhouse situated on Longwater Avenue, Green Park Village, Reading, RG2 6AB.
4
2
£ 508 pw
£ 2,200 pcm
Arranging a Viewing
Phone :01795358886
Letting Details
Let available date: 20/04/2026
Floor:House
Let type:Long Term
Furnish type:Unfurnished
PROPERTY TYPE
House
BEDROOMS
4
BATHROOMS
2
SIZE
1109 sqft
Description
Let UK Home are excited to offer this stunning 4-bedroom townhouse situated on Longwater Avenue, Green Park Village, Reading, RG2 6AB.

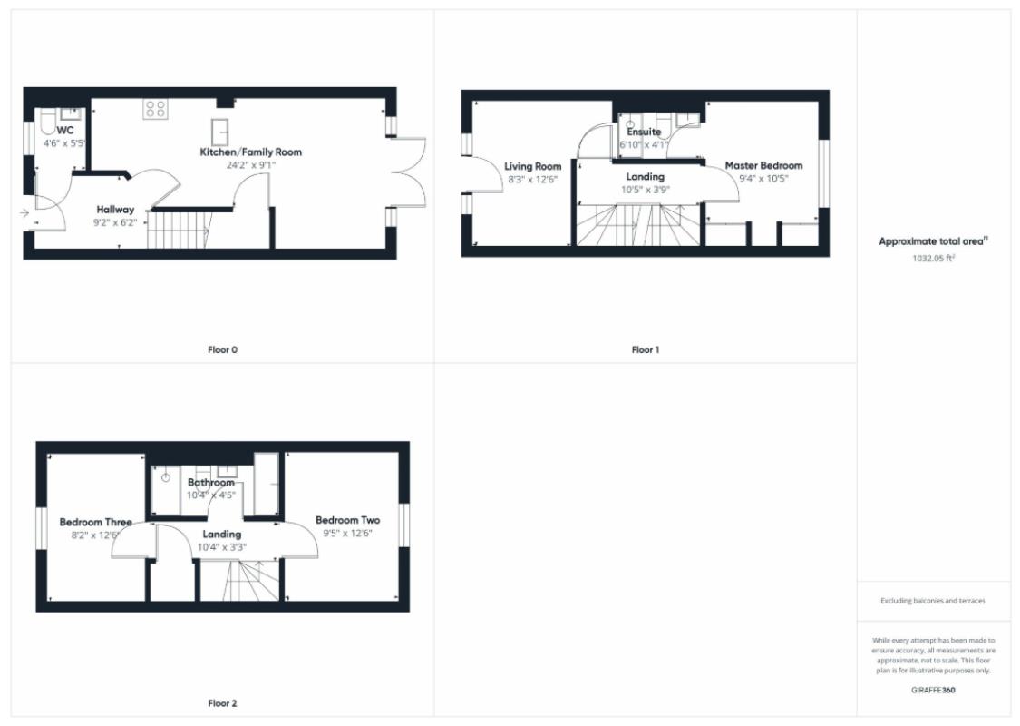
The ground floor provides a superb open-plan kitchen, dining and living space, designed for modern family living and everyday practicality. The kitchen benefits from built-in appliances, generous storage and contemporary finishes. A downstairs toilet adds further convenience. Arranged over the upper floors are three genuine double bedrooms, with the flexibility of a fourth bedroom, nursery, home office or additional living space to suit changing needs. The master bedroom features a modern en suite shower room, while the family bathroom offers a practical four-piece suite, including both a separate bath and shower — ideal for accommodating individual preferences and easing the morning family rush. Large windows throughout, along with first-floor balcony doors, allow natural light to flood the home, creating a bright and welcoming feel across all levels. This property also includes a parking space.

The property is within walking distance from Green Park Station, providing regular services on the Basingstoke line with Reading town centre reached in a few minutes. From Reading Station, buyers benefit from Elizabeth Line (Crossrail) services, mainline routes to London Paddington, and excellent connections across the Thames Valley and beyond. For commuters and road users, the M4 motorway is a short drive away, offering direct access to London, Heathrow Airport, Slough, Maidenhead and Bristol.

Nearby Green Park Business Park offers many convenient facilities for residents, such as a gym, swimming pool, restaurants, retail shops, and lakeside nature trails. The surrounding green spaces, walking routes and cycle paths provide excellent opportunities for dog walks, outdoor play, running and cycling, all quite literally on your doorstep.
Map
University
Shopping
Food
Impact International College
Reading Community Learning Centre
next
Timpson
THE NORTH FACE
Cotswold Outdoor
Heathbrook
Good One Supermarket
Direct Kit
Brothers Office Solutions
Safeway Stores
Chillim Kitchen
Spark Vybe
Berkshire Beverages Cash & Carry
The Food Warehouse
Iceland
Whitley Local
South Whitley Superstore
7 Day Local
Tk Maxx
runnersneed
ALDI
MORRISONS
See Woo Reading
SUBWAY
Hudsons
Oxbo Reading
The Larder Restaurant
Green Bike Food Company
Hungry Horse
The Victoria Cross
The Hexagon
Kens Takeaway
Zotta Deli Coffee House
Hangout Kitchen
New City Fish Bar
Minas Cafe
Zest Trading Uk Limited
Sodexo
Oakhouse Foods Thames Valley
Jp Reading Sushi
Mitchells Butlers Retail
Alobraziluk
Londis
Floorplan
4 B 2 B
Price From £ 508 pw
Area About 1109 sqft
Arranging a Viewing
Key features
The Gym
Swimming Pool
Benefits of Let UK Home Lettings
Real Photos, Real Listings
100% authentic property images and videos for virtual or in-person viewings.
Clear, Upfront Pricing
No hidden fees—transparent rental terms from the start.
Complete Aftercare
We provide ongoing support for maintenance and repairs, ensuring a worry-free rental experience.
Hassle-Free Online Process
Convenient online booking and contract signing to save you time.
Secure Rent Payments
Pay rent online with confidence, using our secure payment system.
You Might Also Like
More
The Axium, 40 Windmill Street, Birmingham B1
Let UK Home are excited to offer this spectacular two bedroom apartment in the heart of The Axium, the sought-after location of central Birmingham.
£ 288 pw
Washington Apartments, 4 Lexington Gardens, Birmingham B15
Let UK Home are excited to offer a modern, gated two-bedroom, two-bathroom furnished apartment in Washington Apartments, located in the highly sought-after Lexington Gardens development.
£ 277 pw
Lincoln Apartments, 3 Lexington Gardens, Birmingham B15
Let UK Home are delighted to offer a modern one-bedroom furnished apartment in gated development – Lincoln Apartments, Lexington Gardens, Birmingham B15.
£ 213 pw
Lincoln Apartments, 3 Lexington Gardens, Birmingham B15
Let UK Home are delighted to offer a modern one-bedroom furnished apartment in gated development – Lincoln Apartments, Lexington Gardens, Birmingham B15.
£ 213 pw
Related Reading
UK Landlord Guide for Beginners! What Documents to Prepare for Renting Out Your Property for the First Time?
Let Uk Home
2024 UK Student Accommodation Move-in Guide!
Let Uk Home
WhatsApp