Sign in
EN
简体中文
ENGLISH
Home
/
Rent
/
Juniper Gardens, 9 Gasholder Place, London SE11
Juniper Gardens, 9 Gasholder Place, London SE11
Available date 29/06/2026

Let UK Home are excited to offer this spectacular two bedroom in the heart of Oval Village in Vauxhall.
2
2
From £ 877 pw
From £ 3,800 pcm
Arranging a Viewing
Phone :01795358886
Letting Details
Let available date: 29/06/2026
Floor:9th Floor
Let type:Long Term
Furnish type:Furnished
PROPERTY TYPE
Flat
BEDROOMS
2
BATHROOMS
2
SIZE
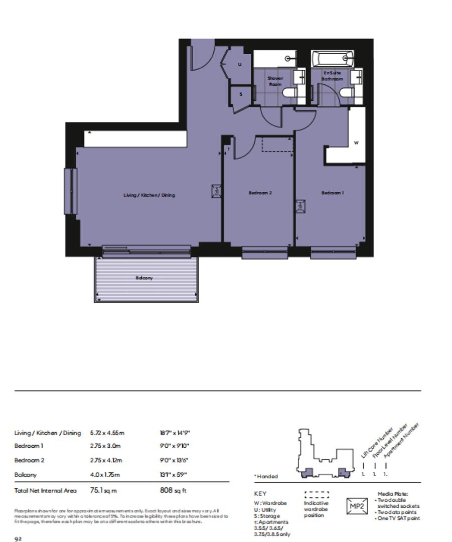
808 sqft
Description
Let UK Home are excited to offer this spectacular two bedroom in the heart of Oval Village in Vauxhall.

This property comprises a large bright open plan kitchen and living room leading to a large private balcony with great views, two double bedrooms(master with fitted wardrobes and en-suite), a large family sized bathroom and ample storage.

Residents of this exceptional development will have exclusive use of the spa, indoor swimming pool, sauna, gymnasium and private screening room. Furthermore, residents will also benefit from a concierge and an unrivalled selection of shops, bars, restaurants, leisure facilities and beautiful landscaped courtyards.

The apartment is surrounded by three subway lines. It is within walking distance of three subway stations, Vauxhall, Oval and Kennington, and two subway lines, Victoria Line and Northern Line, which can lead to all important stations in central London.

The development is surrounded by prestigious universities and has excellent educational resources. From the development, walking will take you to Chelsea College of Arts and London College of Communication (LCC), and by subway or bus you can quickly reach several renowned universities including London South Bank University (LSBU), London School of Economics and Political Science (LSE), King's College London (KCL), University College London (UCL), University of Westminster, and Imperial College London (IC).

The apartment is close to the Kia Cricket Ground, which is the cricket ground with the most cricket matches in the UK. At the same time, daily life is very convenient, there is a large Tesco downstairs, and it is close to Kennington Park and the US Embassy.
Map
Tube
University
Shopping
Food
Underground Battersea Power Station
Underground London Bridge
Underground Borough
Underground Elephant and Castle
Underground Kennington
Underground Monument
Underground Cannon Street
Underground-Oval
Underground St Pauls
Underground St Pauls
Underground Cannon Street
Underground Mansion House
Underground-Lambeth North
Underground Southwark
Underground-Waterloo
Underground Vauxhall
Underground Blackfriars
Underground Embankment
Underground Temple
Underground Oxford Circus
Underground St James's Park
Underground St James's Park
Underground St James's Park
Underground St James's Park
Underground Victoria
Underground Pimlico
Underground Charing Cross
Underground Green Park
Underground Charing Cross
Underground Green Park
Underground Green Park
Underground Green Park
Underground Embankment
Underground Charing Cross
Underground Charing Cross
Underground Clapham Common
Underground Clapham Common
Underground Covent Garden
Underground Covent Garden
Underground Charing Cross
Underground Charing Cross
Underground Charing Cross
Underground Charing Cross
Underground Leicester Square
Underground Leicester Square
Underground Leicester Square
Underground Charing Cross
Underground Clapham North
Underground Stockwell
Underground Nine Elms
Underground Brixton
Underground Bank
Underground-Nine Elms Station
Kings College SCH Med Dentistry
Myrrh Education & Training
Kingdom Life College
King's College London
Institute of Psychiatry
Kings College London
London College of Communication
Christ the Redeemer Bible College
Borough College
London South Bank University
Leicester College of Technology
Cornhill Training Course
Accountancy College
London College of Advanced Studies
Southwark College
London Graduate School
Southwark College
London School of Commerce
City Banking College
Aa Hamilton College
United Medical and Dental Schools
Art Academy
University of Notre Dame
Regent Language Training
Royal Academy of Arts
Kaplan
London Institute of Shipping & Transport
London City College
London City College
BPP Professional Education
Kaplan Law School
Lambeth College
Nuffield College of Surgical Sciences
London School of Economics and Political Science
Kensington College of Business
Randall Institute
London Film School
London College of Fashion
Lambeth College
Concepts College
London College of Business & Computer Studies
SCBS College
South Chelsea College & School of English
Lambeth College
Caiian School London
Photographic Training Academy
Kings College Hall of Residence
King's College London
South Bank University
Maya Clothing
Stella Fashion
Anna Castro Boutique
D and Eddys
Clarks
El Arco del Centro
Adams Antiques Fairs
Discount Shoe Sales
Keith Anthony
WHISTLES
Phase Eight
Waterstones
Alpha Books
The Wig Box
Gareth Tilley
Wildy
Waitrose
Gozi
Lassco
Consigned Sealed Delivered Csd
Knowledge & Ki
Antiques on Windmill Row
Boule in
Didi & Franc
The KIA Oval Cricket Shop
Capital Shopping Centres
Flying Tiger Copenhagen
Victorian News
Waitrose
Tate Britain Shop
Tate Enterprises
Nature's Choice
Miss Patina Li
Market Place VAUXHALL
Big Metal
Fareshares
Topless Boutique
Sainsbury's
Medellin Moda
Central Regalia
Wow Retro
Dancia International
TED BAKER
Stephen Jones Millinery
Letchworth's Freemasons' Hall London
Shop at Freemasons' Ha
Alish Grocers
Unsworth's Booksellers
Gift Box Britain
James Knight Of Mayfair
Millars General Store
Majestic Wine Warehouses
VAUXHALL Food & Beer Garden
Argos
Muzac Enterprises
O Peixeiro
Mu Enterprises
J Wippell
Nicholas Best
The Society Of The Faith
Church House Bookshop
Capsicum Deli
Bruce White
Waitrose
Dollar Wines
Alexander Fashion
Tesco Superstore
The Glassworks
Lao Pai
Mingmen London
Gv Group Gate Ventures
Starson O
Nice Trash
These Kicks
Anni Marketing
Fatty's Jurk Spot
Gideon Kipyegon Food
Housesandwich
Mysticfood
Vlash Marketing
Kevin Kiplangat Zoned
Jovanltt
Ana Mariana
Sarasarasara Clothes
Wzt8189
Wenwangx
Habesh Community
Mangamutu
Firor
Bayka
Your Samples Collective
Hatley Uk Limited
Maktabi Uk
Schiaparelli Uk
Mehle Ss'15
Voeve
Walker Slater
Vaver Marketing
Majestic Wine Warehouses
Kataoe
Fly High Clothing
Walker Books
Orientis (Uk)
Macmillan Cancer Support
Ginger Provisions
Fareshare 1st
Bag Books
8foods
Tracy 2019
South London Investments
Little Bevan
Linhui Trading
Rizwan Accessories
Stylemaison
T3w Global Llc 02
Tiendas Del Sur
Barra De Pito
Latinisima Express
Winemasters
Shy
Make A Wish Antiques
Calder Bookshop Theatre
These Aint The Regulars
Discover Chocolate
Argos
Mony Hungry
Oil London
Astra Bsf
C C M
Book Warehouse
Koftas
M&S Waterloo Simply Food
The D M Lloyd-Jones Recordings Trust
Rising Food Services
Honour
Sushi Sashimi
Foyles
Phc Meanswear Ireland
Adulis Music Shop
Brew On The Go
Antique Beat
Cheung's Oriental Supermarket
Millin Brown
Marathon Mart
Delicias Uk
Amish Boutique
Elena Shvab Millinery
John Buckle Centre
Maison Jarnot
Circa Vintage
Quatre Coins
Smoke N Grillz
Zeenah
Fine Food Specialist
Premier Fruits
G Cohen
Sheep Jackets
World Book Day
Iclr Bookshop
Mum Cares
Svosva
Parisian Textiles
Ballutte
Saralia
Wennijuane
Softnature
Nostresstruevibes
Quickaction Global
Tory Harvey
Cooshh
Ecorebel
Mango Loco
Michael Leigh Menswear
G Baldwin
London Fashions
Trunk Animation Studio London
Threadneedleman Tailors
Psalm 344
Afro World Super Store
Inadequat
Ouni Studio
Shawkea Uk
Timpson
Phonic Books
Bubble Fashion
Global Capital Recruitees
Dynamic Sounds
Elty Life Store
Cassmark International
Okesanco
Flux London
Chic Threads Boutique
Elliott Flava
H H New Wembley Sushi
Concern Worldwide Uk
Leukaemiauk
Carhartt Wip Uk Retail
Plainandsimple
Tavio Express Food Win
Damn Yankee
Compass - Compass
Pancreatic Cancer Uk
Ival Marketing
Prohealth By Ab
Foot Locker
The Lane Se17 Pop-Up Shop
Distriandina
Matt's Gallery
Oddbox Delivery
Antique Meissen Porcelains
Rushton S the Chefs G
Bar Fruit Supplies
Riggio
Yeschef Supplies
Mingmen London
Elephant & Castle Sainsbury's (Argos Collection Point)
Yohome Ec
A Grocery
Tesco
Gt Fashion House
JOULES
Foyles
Big Boss
Coinbridge
Premier Speciality Foods
Walker H G
Greenhill Mushrooms
Squish Supply
I A Harris And Son
Bespoke Capital
S Newman
French Garden
Cocomart
Covent Garden Supply Imports & Direct Sales
Epk Social
The Book Elephant
Indoor Market
I A Harris and Son
new balance
Mek Sky Clothing & Remit
London Bride
Shop From Crisis
Mind
Occasion Cards
Shop Unique
Fashion Republic
Johnyswear
Coco
Sportsdirect.Com
Little Sicily Uk
Clothing Warehouse
Clarissas Boutique
Lambert Souvenirs
Whitehal Gifts
J Brafman
Cockfosters 1
Magical Platform
The Book of Everyone
Crest of London
Estrellortiz
Cool Britannia
Waterstones
The Grocery Store
Wizards and Wonders
Clarks
next
Alinari Firenze
Baughurst Fish & Chips
Tasting Counter
China Kitchen Retford
Joyofcooking
Victoria Paulsen
Superdry Tm
Zadig&Voltaire
Jigsaw
Marnev Garms
Smooth Silk
The Egyptian English Readymade Clothes Furnishings
Dolphins Pharmacy
Karkom Digital
Intu Retail Services
Transit Trading
The Greek Life
Totem House
Dress for Success
Cole Haan Uk
Kilgour Tailoring
Bernard Weatherill Clothing
Launch I T
Demes Newsagents
Just London Gifts & Souvenirs
HOUSE OF FRASER
Hobbs
Elegant Ensamble
Jaeger
Remix Kitchen
The Guilded Acorn
Samuel French Book Sho
古玩店
Chichester Rents
Roderick Charles
Terry Shaverin
APCOA PARKING
Ran Boutique Popup
Hypezeus
London Hit
Gilgrove
S Thorogood And Sons
Oxygn
Tavio Express Food & Wine
Premier Custom Boxes
Allison Risebro
Jigsaw
Hammicks Legal Bookshops
Tradescant Trading Company
Laduca Shoes Uk
Grey Matter Apparel
Club Seven Menswear
Fortitude Fightwear
Sherene
Designerdives.Com
Melodies Inter
Bottlecloths
Aurbi
Vallee Cycling
Regency Supermarket
Jean Patrique
Dpizza Services Uk
Costcutter
Sainsbury's Local
Harry's Kitchen
Sarrion
Tesco Express
Tony's Delicatessen
Nisa
Shop And Go VAUXHALL
Mango Beans West Hendon
Under 1 Tree
Akan
Blue Heaven
Azad T
Playbakes
Rincon Costeno
Hs Caterers
Araldico
Dives London
Yasero
Kocat
Shawarma Bros
Codandco
4 Fratello
Mantl
Lasheen Stationery Uk
Botannika Barnet
Fork Horn
Lexious
Horse Meat Disco
Bistro Requinte
Ilili Shisha Garden
Jihwaja
Mitchells Butlers Retail
Django Bango Gold Rush
Broast Chasers
Bellamys
Mimosa
Payless Food And Wine
Payless
Daebak
Gigigo
The Coriander
Roosters Spot
Dollar Chicken Express
Arch 5 London
Vista Food Wine
Superway Express
Shopone
Macs Kebabs
Edam
All Good
Charles Worthington, Covent Garden
Ritorno Covent Garden
Lockes
Kim Loughton
Scarborough Cafe
The Black Penny Cafe And Brunch
B's Canteen
The Piano Works Covent Garden
Tandoori Nights
Shoryu Ramen Covent Garden
Afuri Uk
Arikitown
Fitness & Leisure Holdings
Elidali
Botannika Barnet
TDQ Steaks
Skyline Lounge
Tesco Express
The Club Lounge Restaurant
Merano Rose Bar
Fridas
Thali & Pickles
Panza Mia
Mamma Made Gnocchi
Karavlaki
Mick Darnalds
Pcn Burgers
The Rose
Chino Latino
Potus Bar And Restaurant
Mezemiso
Londis
High Yaki
Yjmuk
C A Produce
Cru8 Deli
Ecb Croydon
Nvn Retail
Kiki And Miumiu Market
Mezocha
Change Please
Creams
Miko's Ecuadorian and Spanish Kitchen
Satay House
Madeira Properties
Skyland Group
Jai Ho Restaurant
Native Pizza By The Slice
Le Truc
Girder
Tolworth Cakes
Hoa Phuong
London Hu Nan
New Chatkhara
Musakhan
Chatica Latino & Mex Finest Brand
Hora Dorada
Premier Food & Wine
J Snow
Olive Cafe
Culture Grub
The Cut Bar & Restaurant
Ma's Kitchen Rotisserie
Flat Iron Waterloo
Byron
Olivelli
Capital Kebab House
The Bankside Cafe
Spice Of India
Thames Bay
Kokura
Yamagoyauk
Chiyatsu
Meson Don Felipe
The Kings Arms
Kanchanas Kitchen
The Anchor And Hope
Ah Food Centre
Peri Chicken Shop
M Hallalway Butchers
Max Cafe
Lusitania
Chinese Pantry
Selekt Chicken
Noor Desserts
Pollo House
London Lease
U Cantinho da Celia
A Toca Restaurant
Raj Convenience Store
Peri Bites
Twice As Nice
Wing's Chinese Takeaway
Costcutter
Cake Box Stockwell
Terra Lusa
Luanda Grill
Pharmers
Bumbles & Boo
Swipe Snack
Wildology
Gaucho Chancery Lane
Gioma Uk
Brasserie Blanc Chancery Lane
The Old Bank Of England
Got The Motion
Shopitype
Epsilon Omega
Phil's Cuisine
Intuicion
Solent Bars
Ideal Mobile Junction
Kayaya
Bkr Partners
Chinell Services
Nayaritas
7lcmanco
Enroute
Casa Colombia
Dortiti
Latin Bites
Slider Lab
The Plantbase Store
Bobo Ep
Tasty Jerk
Sugo
Koi
Pot & Rice
Beza
Sevene Group
J7 Party K
Co-Op Food
Carolina Bar Lounge
El Mana
Yuleidy's Restaurant
Jerk Stop
Shop and Go Oriental Supermarket
Yzhy
Ning Season
Vita Mia Pizza
Kyivfood
Hk Tea
Brews Blooms
Tipsygrains
Griffin Belle VAUXHALL
Evernight
Darbys
Skypool
Nine Elms Restaurants
Gail's Bakery
Gold Falcon Ventures
Tia Maria
Brunswick House Cafe
Mumbai Delight
L' Arena
43 Szechuan Kitchen
Harar Restaurant
Maltby Street Market
Amba Food & Wine
Will's Cafe
Opa Street Food
Caribbean Pizza Company
Parco Cafe
Vine Bar
The Broadway Fulham
Wedding House Patisserie
Pinto's Tapas Bar
Ka te Espero
Acv Food
Caminetto
Dishoom
Kido Battersea International
Tesco
Kervan Sofrasi
Sunshine Kebabs Uk
Bhatti
Narrow Road
The George
Sway
Riverside Cafe
Yummy Vegan Unit 8
Bronsons Burgers
Tamesis Dock
Orgacado
Jay Foods Wine London
Tea for You
Dortiti LTD Trading AS T4
Aobaba
Six Yard Box
El Gran Sazon Latino
Rincon Cochabambino
Los Arrieros De Pito
Paulas Elephant
Marcel & Sons
Ivory Arch
Daddy O Suya Spot
Commadotsmiley
Rice Bandits Group
Rasa
Layer and Light
Naturally Charged
Jiri Dvorak
Lauren Wilmott
Bloom Bakery
Matcha Plus Limited
Yang's Steamed Buns
Mighty Slice
Its Blisss
Taitussi Bakery
Toum & Tahini
Panela Bakery
Cocomel Nusantara
Apples Bakery
Jerk N Juice (Carribean Cuisine)
Dookies Grill
Tabula Bakery
Komodo Bakery
Passyunk Avenue
Coco
VAUXHALL Arches
Curry on Naanstop
Sakura-do
Knot
Digbys
Waterfront Brasserie
Wingmen
Mabels Little Cake Company
Chatica
The Castle Cafe Bakery
Eddy Traders
Coma Y Beba
El Guambra
Colombia Services
The Castle Cafe
Kaieteur Kitchen Original
Little Louie
Kachori
Mexep
The Windmill
Gail's Bakery
Radiance Bubble Tea
Grabinsky's Catering Limited
Sainsbury's Café
Patisserie Valerie
Sueperlicious Bakery
Ripe London
Bar Rocco Se5
Cakes By Lyza
Frankies Brownies
Third Of September
Chroma
VAPIANO
Natural Fitness Food
BL Events
The Fork Tales
Velho Portugal
Mei Tea
Hiep Phat
Kairos Moza
Galaxy Karaoke Restaurant
Ossies Jerk Chicken
Delibakery
Delipan
Fes Restaurant
Speciality Smoked Food
Arif Bakery
New Platinumbakery
Prestigio
Rude N Boomin
Zing
Oodles Wok Walworth Road
McDonald's
Tesco Express
Mama Thai
Bodeguita Delicatessen
The Parlour
Tesco Express
Savage Club
Pret a Manger
The Needlemakers
Plaza Pastor
New Slots Sites
Union Jacques
Paul le Cafe
Frankie & Benny's
Deep Pan Pizza
Sambuca London
Garfunkels
Caffe Concerto
Caffe Concerto Whitehall
Walkers Of Whitehall
PAUL
50 Kalo
Trafalgar Theatre
Horse & Guardsman
Garden Cafe
Battersea
Sevan Caterers VAUXHALL
Yú Gé Cantonese Cuisine
The Nine Elms
Itsu
Two Little Giraffes
Source Cafe
Costcutter
Hinaga
Nando's
Rocket Padel PBS
Chokhi Dhani
Tashas
The Alchemist
Luckytea 0086
Leonidas Chocolate
Marston's
Sandwich Company
Baxter Storey @Watson Wyatt
Lounge Cafe Bar
Farmer J St James's
Ess Goverment Services
Cafe Fresco
聖家酒店
The Cinnamon Club
Indian Restaurants
Blue Boar
Pret a Manger
The Pem
The Speaker
Itsu Grocery
Curzon
Bumbu Maria
Ma La Sichuan
Abokado
Falafel Zaki Zaki
Coco di Mama
Santana Grill
Pronto Grill Bar
Food Works Turkish Kitchen
Celina
Shahs Halal Food
Ichi-Riki
Grab And Go
Taste of Borneo
Herbs X Spices
Gazelle Bakery
Emporium
KFC
Mow Pizza
Xoxo Coffee And Dessert
Pollen Grace
Berna Bakes
FIVE GUYS
Buena Onda Taco
Clean Cut Barbers Exclusive Jerk Cuisine
Duchess Belle
Raj News
0086 Supermarket
Day 1
Tesco Express
Casa Benfica Londres
HeyMan
Andalucia Patisserie
Sainsbury's Local
Creams Cafe
Heavenly Desserts
Blushh Restaurant & Lounge Bar
Cafe De Provence2
Bakers Baristas Uk
Hunter Trading
Searcys @ the Royal College of Surgeons of England
Plaza Cafe
Mitchells Butlers Retail
Lse Garrick
Lse Fourth Floor Restaurant
Sushiya
Ye Old White Horse
Roka Aldwych
Pret a Manger
The Bean Counter
Coopers
Bluegardennight
Mira Management Club
Pall Mall Wine
Yuum
Santana Grill
Olis Bakery
The Tap In
South Indian Relish
New Covent Garden Market
Yesterday's Curry
Tippi's
Mamma G Cookies
Egg Solders
Araw Ice Cream
Power League
Lexington at Battersea Power Station
itsu
河畔酒店-俱乐部&公寓
Pizzeria Ciampino
D Grill
Manta Gray
Belle Pubs & Restaurants
Strada
Central
Qlean
Foodversity
Viva Argan
Mat Al
Escentuals
Thaiangle
Mexyfood
Kennington Lane Cafe
Riquanshi Uk
Lusobritannia
Grocery Store
Bar Brasso
Bao8
Soulmate Food
Norc Lab
Tesco Express
Hello Sweetie Of Westminster
Residential Home
Channel 4 Canteen
Gbge
itsu
Mio Restaurant Bar
Joe's Espresso Cafe Bar
El Dionis Westminster
White Horse & Bower
Pret a Manger
Tesco Express
Pizza Mannyacs
The Loose Box
Moet
Dn International
Baccalalondon
Munich Cricket Club
Acai Berry
MR Tandoor
The Kebab Station
Lucky Fish Bar
Food Exchange
Nooribite
Dazzling Ac
Momo's Shack
Burnt Out
Apna Khaana
Taco Rico
Bayroot
Floorplan
2 B 2 B
Price From £ 877 pw
Area About 808 sqft
Arranging a Viewing
Key features
9th Floor
The Gym
Swimming Pool
Cinema & Game Room
24h Security
Concierge Service
Residents Lounge
Co-working Space
EPC Rating: B
Benefits of Let UK Home Lettings
Real Photos, Real Listings
100% authentic property images and videos for virtual or in-person viewings.
Clear, Upfront Pricing
No hidden fees—transparent rental terms from the start.
Complete Aftercare
We provide ongoing support for maintenance and repairs, ensuring a worry-free rental experience.
Hassle-Free Online Process
Convenient online booking and contract signing to save you time.
Secure Rent Payments
Pay rent online with confidence, using our secure payment system.
Tenant Fees Schedule
You Might Also Like
More
Victoria House, 250 Great Ancoats Street, Manchester M4
Let UK Home are excited to offer a stunning one bedroom apartment in Victoria House located in Manchester M4 7BU.
From £ 335 pw
Juniper Gardens, 9 Gasholder Place, London SE11
Let UK Home are excited to offer this spectacular two bedroom in the heart of Oval Village in Vauxhall.
From £ 877 pw
Leamore Street, London, W6
Let UK Home are delighted to offer a two-bedroom House in Sovereign Court development located in Hammersmith And Fulham, London.
From £ 877 pw
Riverside Apartments, Goodchild Road, London N4
Let UK Home are excited to offer a stunning one bedroom apartment in Riverside Apartments. part of Woodberry Down development.
From £ 623 pw
Related Reading
UK Landlord Guide for Beginners! What Documents to Prepare for Renting Out Your Property for the First Time?
Let Uk Home
2024 UK Student Accommodation Move-in Guide!
Let Uk Home
WhatsApp